Esgoto sanitário

Depois de lançar todos os aparelhos hidráulicos necessários ao projeto com os métodos já foi descritos no tópico Distribuição de água, podemos iniciar o lançamento dos tubos e conexões de esgoto. No ArchiStation® MEP, no menu INSTALAÇÕES Hidráulica, estão dispostos os comandos para o lançamento dos tubos e conexões de esgoto sanitário.

Lançamento das tubulações de esgoto sanitário

O lançamento das tubulações poderá ser feito em qualquer um dos modos de visualização Em planta , Perspectiva ortogonal ou Perspectiva cônica . Alternar entre os modos de visualização pode facilitar a captura de determinados pontos em situações específicas. Ainda que seja possível lançar todas as tubulações no modo de projeção Em planta, é importante alternar para um dos modos de visualização de perspectiva para conferir se o lançamento ocorreu da forma como planejado no espaço tridimensional.


BWC que será usando neste exemplo de lançamento

  • Para criar a tubulação de esgoto:
  1.  Vamos iniciar pelo lançamento do esgoto primário. Selecione o aparelho hidráulico Bacia sanitária. Marcações triangulares em laranja deverão indicar os pontos de conexão disponíveis para início das tubulações;



  2.  Clique sobre o triângulo laranja no ponto central do aparelho, onde se localiza a saída para o esgoto sanitário, para dar início ao lançamento da tubulação;

    Observação: Quando uma tubulação de esgoto é iniciada a partir de um aparelho com a direção de saída apontando para o piso, um ponto será adicionado automaticamente levando a tubulação para o nível abaixo do piso.


    Vista em perspectiva mostrando o ponto adicionado de forma automática para levar a tubulação ao nível abaixo do piso

  3. Preferencialmente, desative o assistente de Alinhamento por Objetos pressionando a tecla de atalho <F3> caso esteja ligado. Isso evitará a captura de pontos indesejados e em níveis diferentes;
  4.  Indique os pontos necessários para criar o caminho até onde deseja levar a tubulação;

  5. Confirme o lançamento da tubulação clicando com o botão esquerdo do mouse ou pressionando a tecla <ENTER>;


    A tubulação deverá ser criada com as devidas conexões e adicionada ao projeto.

Ralo sifonado

  • Para adicionar um ralo sifonado:
  1.  No menu INSTALAÇÕES Distribuição de água pressione o botão Aparelhos hidráulicos ;
  2. Clique sobre o ícone Abrir componentes de arquivo:

  3.  Na coleção de "Aparelhos hidráulicos", selecione o componente "Ralo sifonado 100x100x50" e pressione OK para confirmar;



  4. Aproxime o cursor do mouse da posição aonde deseja inserir o Ralo sifonado.



  5. Quando a previsão mostrar o componente na posição desejada, confirme clicando com o botão do mouse.



  6. Definido o ponto de inserção, movimente o mouse ao redor o componente para ajustar o Ângulo de orientação da peça.
  7. Quando a previsão mostrar o componente no ângulo desejado para o projeto, confirme clicando com o botão do mouse.

Os ralos estão agrupados na categoria Aparelhos hidráulicos pois captam a água proveniente do chuveiro e limpeza, possuindo assim Unidades Hunter de contribuição que devem ser contabilizadas no processo de cálculo das tubulações. Já as caixas sifonadas de passagem podem ser encontradas na categoria Conexões de esgoto.

  • Para ligar ralo sifonado a tubulação primária:
  1. Selecione o Ralo sifonado. Marcações triangulares em laranja deverão indicar os pontos de conexão disponíveis para início das tubulações;



  2. Clique sobre o triângulo laranja respectivo a saída, de maior diâmetro, para dar início ao lançamento da tubulação;



  3. Ative o assistente de Alinhamento por Objetos pressionando a tecla de atalho <F3> caso esteja desligado para capturar as tubulações existentes no projeto;
  4. Aproxime o mouse do ponto da tubulação primária aonde pretende conectar o ralo.



  5. Quando o assistente Alinhar por objetos <F3> indicar com o sinal a captura do ponto desejado na tubulação, confirme clicando com o botão do mouse para iniciar o lançamento da tubulação.


A tubulação primária será dividida em duas partes a partir do ponto indicado e no local será adicionada uma peça de conexão, se disponível, para conectar o ralo e a tubulação de ligação.

Ligando o Lavatório

  • Para ligar o lavatório ao ralo sifonado:
  1.  Selecione o Lavatório. Marcações triangulares em laranja deverão indicar os pontos de conexão disponíveis para início das tubulações;
  2. Clique sobre o triângulo laranja referente a captação de esgoto sanitário, para dar início ao lançamento da tubulação;



  3. Para criar uma tubulação até o ralo, será necessário a adição de pontos intermediários. Indique um ponto alinhado com o eixo conforme indicado na figura abaixo;



  4. Agora, para capturar corretamente o alinhamento com o ralo, coloque o cursor do mouse sobre a entrada desejada e aguarda até aparecer o sinal de alinhamento ;



  5. O sinal de alinhamento deverá permanecer visível até que o usuário indique um ponto. Movimente o cursor do mouse até encontrar o ponto de alinhamento em 45º entre as tubulações.



  6. Confirme a indicação do ponto no alinhamento clicando com o botão do mouse.
  7. Aproxime o cursor do mouse da entrada do Ralo sifonado;



  8. Quando o assistente Alinhar por objetos <F3> indicar com o sinal a captura da tubulação, confirme clicando com o botão do mouse;


A tubulação deverá ser adicionada no projeto com todas as conexões necessárias.

Coluna de ventilação

  • Para criar uma coluna de ventilação:
  1.  No menu INSTALAÇÕES ► Esgoto sanitário pressione o botão Tubos ;
  2. Selecione o diâmetro do tudo de ventilação desejado, normalmente 50 mm;



  3. Ative o assistente de Alinhamento por Objetos pressionando a tecla de atalho <F3> caso esteja desligado para capturar as tubulações existentes no projeto;
  4. Aproxime o mouse do ponto da tubulação aonde pretende conectar a coluna de ventilação.



  5. Quando o assistente Alinhar por objetos <F3> indicar com o sinal a captura do ponto desejado na tubulação, confirme clicando com o botão do mouse para iniciar o lançamento da tubulação;

  6. No Inspetor de Objetos <F11> clique sobre o comando Subir/Coluna de ventilação .


A tubulação será criada e a indicação de coluna de ventição será adicionada ao projeto.

Outra forma de ventilar a tubulação, mais comum em projetos com múltiplos pavimentos, seria criar uma tubulação a partir da ligação entre o ralo sifonado e o esgoto primário. Conforme mostrado na imagem abaixo.

O processo de lançamento seria bem similar:

  1. No menu INSTALAÇÕES ► Esgoto sanitário pressione o botão Tubos ;
  2. Selecione o diâmetro do tudo de ventilação desejado, normalmente 50 mm;
  3. Aproxime o mouse do ponto da tubulação desejado do ramal entre o ralo sifonado e o esgoto primário.
  4. Quando o assistente Alinhar por objetos <F3> indicar com o sinal a captura do ponto desejado na tubulação, confirme clicando com o botão do mouse para iniciar o lançamento da tubulação;
  5. Indique todos os pontos necessários até chegar ao local da coluna de ventilação.



  6. No Inspetor de Objetos <F11> clique sobre o comando Subir/Coluna de ventilação .

Definindo Tubos de queda

Da mesma forma, para criar a tubulação primária em edifício com múltiplos pavimentos, ao invés de levar a tubulação para o lado externo da edificação, no momento do lançamento da tubulação, utilize o comando do Descer/Tubo de Queda localizado no Inspetor de Objetos <F11> para criar uma coluna de queda no último ponto indicado.

Alterando a posição da indicação de uma tubulação

A indicação da tubulação é feita inicialmente pelo ponto central da projeção em planta da tubulação. No entanto, em alguns casos, pode ser necessário reposicionar para evitar sobreposição com outros elementos, textos ou indicações do projeto.

  • Para alterar a posição da indicação de uma tubulação:
  1.  Selecione a tubulação desejada. Triângulos na cor cinza deverão aparecer na posição da indicação;



  2. Clique sobre o triângulo cinza para alterar a posição da indicação;
  3. Indique um ponto para a nova posição da indicação.



Caso indique um ponto próximo da tubulação, a indicação será desenhada acompanhando o ângulo do trecho da tubulação no ponto indicado. Se o ponto for a uma certa distância da tubulação, será criada uma linha de chamada para a indicação.
Para retornar a indicação ao modo inicial, selecione a tubulação e nas propriedades do Inspetor de objetos <F11> marque a caixa com a opção Ajustar indicação.

Caixa de inspeção

  • Para adicionar uma caixa de inspeção:
  1.  No menu INSTALAÇÕES ► Esgoto sanitário pressione o botão Caixas e conexões ;
  2. Clique sobre o ícone Abrir componentes de arquivo:


  3. Na coleção de "Conexões de esgoto - caixas, tanques e acessórios", selecione o componente "Caixa de inspeção em blocos de concreto" e pressione OK para confirmar;



  4. Aproxime o cursor do mouse da posição aonde deseja inserir a Caixa de inspeção. Caso houver uma tubulação próxima, o sistema irá alinhar a tubulação mais próxima da caixa com a tubulação existente no projeto.


A seta mostra o ponto de conexão entre a tubulação existente no projeto com a caixa de inspeção.

Caixa de gordura

A inserção da caixa de gordura é similar a das caixas de inspeção. A biblioteca possui diversos tipos e tamanhos de caixas de gordura.

  1.  No menu INSTALAÇÕES ► Esgoto sanitário pressione o botão Caixas e conexões ;
  2. Clique sobre o ícone Abrir componentes de arquivo;
  3. Na coleção de "Conexões de esgoto - caixas, tanques e acessórios", selecione a caixa de gordura pressione OK para confirmar;



  4. Aproxime o cursor do mouse da posição aonde deseja inserir a Caixa de gordura. Caso houver uma tubulação próxima, o sistema irá alinhar a tubulação mais próxima da caixa com a tubulação existente no projeto.

Conectando tubulações

Eventualmente, durante o lançamento das tubulações, pode ser necessário unir duas tubulações desconectadas. O comando Conectar tubulações poderá ser utilizado para realizar a junção de forma automática.

  • Para conectar duas tubulações:
  1.  Ative o comando Conectar utilizando uma das seguintes formas:



    Clique sobre a seta do ícone Aparelhos hidráulicos e no menu selecione o item Conectar tubulações;
    Ou utilize o atalho pelo teclado digitando F <ESPAÇO>;
    Ou a partir do menu DESENHO ► Modificar clique sobre o o ícone Conectar► Unir .

  2. Clique sobre as extremidades das tubulações que deseja conectar;


As tubulações serão unidas pelo ponto de interseção.


Se as tubulações estiverem em diferentes cotas de nível, será criado um trecho adicional de tubulação para ligar as tubulações entre os dois níveis.


Ligação com a rede coletora

  1.  Selecione a Caixa de inspeção. Marcações triangulares em laranja deverão indicar os pontos de conexão disponíveis para início das tubulações;



  2. Clique sobre o triângulo laranja no ponto onde pretende sair com com a tubulação destinada a conexão com a rede coletora, Será iniciado o processo de lançamento da tubulação.



  3. Caso ligado, desative o assistente de Alinhamento por objetos pressionando a tecla de atalho <F3>. para avitar a captura de pontos indesejados em outros níveis.
  4. Indique todos os pontos necessários para criar o caminho até a junção com a rede coletora. Esse ponto deverá ser próximo ao alinhamento predial, sobre o passeio. Verifique as normas de sua operadora.



  5. Quando indicar o último ponto, o local de ligação, confirme o lançamento da tubulação clicando o botão direito do mouse ou pressionando a tecla <ENTER>.

  6. No menu INSTALAÇÕES ► Esgoto sanitário pressione o botão Caixas e conexões ;
  7. Clique sobre o ícone Abrir componentes de arquivo;
  8. Na coleção de "Conexões de esgoto - caixas, tanques e acessórios", selecione o componente "Ligação rede de esgoto" e pressione OK para confirmar;


    Este componente contém o TIL de ligação.

  9. Aproxime o cursor do mouse da tubulação de ligação com a rede coletora;



  10. Quando a seta do componente estiver apontando a direção de saída do esgoto, confirme clicando com o botão do mouse.

Sistemas de tratamento

Caso a região da edificação não possua sistema de coleta e tratamento de esgoto, o sistema possui em sua biblioteca componentes que podem ser utilizados para montagem de um sistema de tratamento no local. Contando com Fossas sépticas e filtros anaeróbios de diversos tipos e tamanhos. Também conta com um componente "Sumidouro" para destinação final.
O método de inserção dos componentes de tratamento de esgoto é igual a inserção das caixas de inspeção e gordura.

Caso seu projeto necessite algum componente ou sistema que não esteja relacionado na biblioteca, por favor, entre em contato para verificarmos a viabilidade de implementação.

Criando a Planta de Esgoto sanitário

Depois de adicionar todos as unidades de ar condicionado previstas no projeto, chegou a hora de criar as pranchas do projeto de Instalações hidráulicas.

  1. Clique sobre a aba PROJETO para abrir o Gerenciador de projeto;
  2. Com o botão direito do mouse clique sobre o item da disciplina Hidráulica;



  3. No menu, selecione o item Esgoto sanitário;
  4. Torne corrente o pavimento desejado e indique dois pontos para determinar o retângulo de abrangência da planta baixa;


A definição de planta de Esgoto sanitário deverá ser criada e aparecer na relação de itens do Gerenciador de projetos.
Repita o processo para criar a planta de esgoto sanitário dos demais pavimentos da edificação.

Criando Detalhes de esgoto sanitário

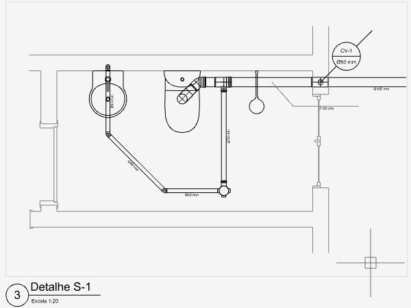
Em um projeto hidráulico é importante criar detalhes das instalações de esgoto sanitário em maior escala maior. O sistema poderá criar os detalhes automaticamente a partir da indicação de um retângulo de abrangência.


Exemplo de Detalhe de esgoto sanitário

  • Para criar um Detalhe de esgoto sanitário:
  1.  Clique sobre a aba PROJETO para abrir o Gerenciador de projeto;
  2. Com o botão direito do mouse clique sobre o item da disciplina Hidráulica;
  3. No menu, selecione o item Detalhe de esgoto sanitário;
  4. Torne corrente o pavimento desejado e indique dois pontos para determinar o retângulo de abrangência para o detalhe.



A definição do Detalhe de esgoto sanitário deverá ser criada e aparecer na relação de itens do Gerenciador de projetos. Repita o processo para criar todos os detalhes necessários ao projeto. Ao gerar a Planta de Esgoto sanitário os Detalhes deverão ser indicados com sua respectiva numeração.

Adicionando os desenhos as pranchas do projeto hidráulico

  • Para adicionar os desenhos as pranchas do projeto:
  1.  Alterne para o modo Pranchas do projeto ;
  2. No Gerenciador de projetos, expanda o item da disciplina Hidráulica;
  3. Clique sobre "Esgoto sanitário" e mantendo o botão do mouse pressionado arraste para o projeto. A planta será gerada;
  4. Indique um ponto para definir o local para inserção;



  5. Repita o processo para inserir todas as demais plantas e detalhes definidos para o projeto hidráulico;

Detalhes de instalações prontos para o projeto

O sistema oferece ao projetista alguns detalhes de instalações na forma de blocos prontos para serem inseridos no projeto.

  • Para inserir um detalhe:
  1.  Clique sobre a aba PROJETO para abrir o Gerenciador de projeto;
  2. Com o botão direito do mouse clique sobre o item da disciplina Hidráulica;



  3. No menu, selecione o item Detalhes...;
  4. Selecione o detalhe desejado e pressione OK para inserir nas pranchas do projeto.

Tabelas de quantidades e legendas

Já estão configuradas tabelas com símbolos e quantidades para Aparelhos hidráulicos, Tubulações e Conexões de esgoto.


Exemplo de tabelas de Conexões e Tubulações de esgoto com simbologia

  • Para criar as tabelas de quantidades e legendas de Hidráulica:
  1.  No Gerenciador de projetos, clique com o botão direito do mouse sobre o item da disciplina Hidráulica;
  2. No menu, selecione o item Tabela de Conexões de esgoto. A tabela deverá aparecer na relação de tabelas;
  3. No modo Pranchas do projeto , selecione a tabela do Gerenciador de projetos e arraste para a prancha.
  4. Repita o processo para criar e inserir no projeto a tabela de Tubulações de esgoto;

Orçamentos

Cada equipamento ou tubulação deverá estar associado a uma composição de custos vínculada aos respectivos códigos SINAPI. Caso o componente ainda não possua uma composição associada, ou não possua um código SINAPI, ao gerar o orçamento o usuário será informado.

Exportação IFC

  • Para exportar a disciplina para um arquivo IFC:
  1.  Clique sobre a aba PROJETO para abrir o Gerenciador de projeto;
  2.  Com o botão direito do mouse clique sobre o item da disciplina Hidráulica;
  3.  No menu selecione o item "Exportar IFC...";
  4.  Na janela Exportar disciplina para... selecione a pasta, especifique o nome para o arquivo e clique sobre o botão OK.


Tópicos relacionados: